De Kubistische woning: ontworpen om mee te bewegen met uw woonwensen

De Kubistische woning is een nieuw woningtype binnen het aanbod van Groothuisbouw. Het ontwerp kenmerkt zich door een moderne vormgeving, strakke lijnen en een plat dak. Het is een aanvulling op onze woningen met kap. De manier van bouwen blijft vertrouwd, met duidelijke afspraken en aandacht voor kwaliteit.

Standaard heeft de Kubistische woning

Plat dak
Mogelijkheid tot 4 slaapkamers
Ruime woonkamer
Aangebouwde berging is optioneel

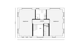
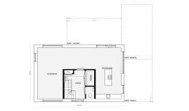
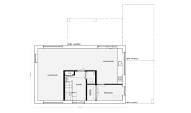
Kies zelf de perfecte indeling

Omdat niet alle woonwensen hetzelfde en niet alle kavels even groot zijn, kiest u zelf de afmeting en indeling die het beste bij u past. Laat u inspireren door de plattegronden. Een geheel eigen indeling? Ook dat kan. Wij zijn benieuwd naar uw ideeën! 

De uitvoeringen

Modern & Stijlvol

4 kamers | 556 m3

Ontdek deze woning

Extra opties

De Kubistische woning biedt alle ruimte om het ontwerp verder af te stemmen op persoonlijke woonwensen. Er zijn verschillende opties mogelijk die invloed hebben op licht, ruimte en gebruik. De Kubistische woning kan onder andere voorzien worden van de volgende opties:


  • Berging
  • Carport
  • Veranda met lichtstraat
  • Hoekkozijn

Stel uw eigen Kubistische woning samen

Betalen bij oplevering

Betalen bij oplevering

Het is bijna niet te geloven, maar u hoeft de woning pas bij oplevering te betalen.

Lees verder
Modelwoningen

Modelwoningen

Bekijk de kwaliteit van onze 6 modelwoningen en doe wooninspiratie op.

Lees verder
Contractueel vastgelegde opleverdatum

Contractueel vastgelegde opleverdatum

Wij kunnen de opleverdatum van uw woning 'zwart-op-wit' garanderen.

Lees verder
Combinatie traditioneel en prefab bouwen

Combinatie traditioneel en prefab bouwen

Wij bouwen op traditionele wijze met de voordelen van prefab. 

Lees verder
Een vaste prijs

Een vaste prijs

Wij werken met vaste contractprijzen.

Lees verder
10 jaar garantie

10 jaar garantie

Na oplevering staan wij nog 10 jaar met plezier voor u klaar.

Lees verder

Bouw uw droomwoning met Groothuisbouw

Bereken prijs voor deze woning

Ontdek onze andere woningtypen

Modern & Stijlvol

GL4 | 4 kamers | 738 m3

Ontdek deze woning

Modern & Stijlvol

GL2 | 5 kamers | 1.040 m3

Ontdek deze woning

Modern & Stijlvol

GL5 | 4 kamers | 906 m3

Ontdek deze woning

Modern & Stijlvol

GL6 | 5 kamers | 1.021 m3

Ontdek deze woning