Een moderne woning met een vleugje landelijke charme.

Een wolfskap zorgt bij de meeste mensen meteen voor een rustiek en romantisch gevoel. In combinatie met de grote woonkamer, de royale woonkeuken en een zee aan ruimte op de verdieping is de GL5 een heerlijk huis voor iedere levensfase.

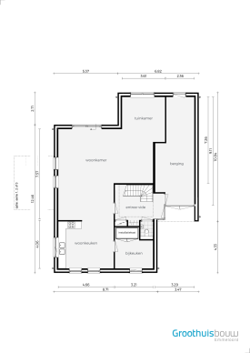
Standaard heeft de GL5

4 Slaapkamers
Een grote woonkamer met tuinkamer
Een royale woonkeuken
Ruime hal met vide en groot dakraam
Grote berging

Kies zelf de perfecte indeling

Omdat niet alle woonwensen hetzelfde en niet alle kavels even groot zijn, kiest u zelf de afmeting en indeling die het beste bij u past. Laat u inspireren door de plattegronden. Een geheel eigen indeling? Ook dat kan. Wij zijn benieuwd naar uw ideeën! 

De uitvoeringen

Eigentijds & Strak

4 kamers | 852 m3

Ontdek deze woning

Gemetselde topgevels

4 kamers | 852 m3

Ontdek deze woning

Modern & Stijlvol

4 kamers | 906 m3

Ontdek deze woning

Notarisstijl

4 kamers | 852 m3

Ontdek deze woning

Wolfskap

4 kamers | 852 m3

Ontdek deze woning

Extra opties

Gaat u voor nog meer ruimte door te kiezen voor een berging of droomt u al helemaal weg bij de gedachte aan die schitterende serre? Door uw woning te verfraaien met extra opties maakt u uw eigen unieke plaatje compleet. De GL5 kan onder andere voorzien worden van de volgende opties:

  • Serre
  • Dakkapellen
  • Frans balkon
  • Roeden | tussen glas
  • Extra schoorsteen

Stel uw eigen GL5 samen

Betalen bij oplevering

Betalen bij oplevering

Het is bijna niet te geloven, maar u hoeft de woning pas bij oplevering te betalen.

Lees verder
Modelwoningen

Modelwoningen

Bekijk de kwaliteit van onze 6 modelwoningen en doe wooninspiratie op.

Lees verder
Contractueel vastgelegde opleverdatum

Contractueel vastgelegde opleverdatum

Wij kunnen de opleverdatum van uw woning 'zwart-op-wit' garanderen.

Lees verder
Combinatie traditioneel en prefab bouwen

Combinatie traditioneel en prefab bouwen

Wij bouwen op traditionele wijze met de voordelen van prefab. 

Lees verder
Een vaste prijs

Een vaste prijs

Wij werken met vaste contractprijzen.

Lees verder
10 jaar garantie

10 jaar garantie

Na oplevering staan wij nog 10 jaar met plezier voor u klaar.

Lees verder

Bouw uw eigen droomhuis met Groothuisbouw

Bereken prijs voor deze woning

Ontdek onze andere woningtypen

Wolfskap

GL4 | 4 kamers | 687 m3

Ontdek deze woning

Wolfskap

GL2 | 5 kamers | 905 m3

Ontdek deze woning