Ruim en comfortabel wonen in deze moderne gezinswoning.

Kiest u ervoor om de GL6 uit te laten voeren met ‘gemetselde topgevels’ dan kan de topgevel naar wens volledig worden gemetseld, of gedeeltelijk worden uitgevoerd in kunststof of red ceder.

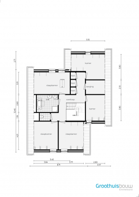
Standaard heeft de GL6

5 Slaapkamers
Ruime hal met vide en lichtkoepel
Een grote woonkamer met tuinkamer
Een royale woonkeuken
Royale berging
Standaard ruim 900 m3

Kies zelf de perfecte indeling

Omdat niet alle woonwensen hetzelfde en niet alle kavels even groot zijn, kiest u zelf de afmeting en indeling die het beste bij u past. Laat u inspireren door de plattegronden. Een geheel eigen indeling? Ook dat kan. Wij zijn benieuwd naar uw ideeën! 

De uitvoeringen

Eigentijds & Strak

5 kamers | 971 m3

Ontdek deze woning

Gemetselde topgevels hoofdgebouw

5 kamers | 971 m3

Ontdek deze woning

Kunststof topgevels

5 kamers | 971 m3

Ontdek deze woning

Modern & Stijlvol

5 kamers | 1.021 m3

Ontdek deze woning

Notarisstijl

5 kamers | 971 m3

Ontdek deze woning

Wolfskap

5 kamers | 971 m3

Ontdek deze woning

Extra opties

Kiest u voor luiken aan de voorzijde voor nog meer uitstraling van de woning, of droomt u al helemaal weg bij de gedachte aan die schitterende serre? Door uw woning te verfraaien met extra opties maakt u uw eigen unieke plaatje compleet. De GL6 kan onder andere voorzien worden van de volgende opties:

  • Serre
  • Luiken
  • Frans balkon
  • Roeden | tussen glas
  • Klassieke kozijnen

Stel uw eigen GL6 samen

Betalen bij oplevering

Betalen bij oplevering

Het is bijna niet te geloven, maar u hoeft de woning pas bij oplevering te betalen.

Lees verder
Modelwoningen

Modelwoningen

Bekijk de kwaliteit van onze 6 modelwoningen en doe wooninspiratie op.

Lees verder
Contractueel vastgelegde opleverdatum

Contractueel vastgelegde opleverdatum

Wij kunnen de opleverdatum van uw woning 'zwart-op-wit' garanderen.

Lees verder
Combinatie traditioneel en prefab bouwen

Combinatie traditioneel en prefab bouwen

Wij bouwen op traditionele wijze met de voordelen van prefab. 

Lees verder
Een vaste prijs

Een vaste prijs

Wij werken met vaste contractprijzen.

Lees verder
10 jaar garantie

10 jaar garantie

Na oplevering staan wij nog 10 jaar met plezier voor u klaar.

Lees verder

Bouw uw eigen droomhuis met Groothuisbouw

Bereken prijs voor deze woning